Te huur Appartement Metropolestraat 21 D 2 in Almere Te huur

The Netherlands

€1925

Eigenschapsdetails

  • Soort type: Appartement
  • Woningstatus: 1
  • Vastgoedprijs: 1925/maand
  • Kamers: 3
  • Slaapkamers: 2
  • Woon gebied: 89 m²
  • Beschikbaar per: In overleg
Gecontroleerd op: 14-Oct-2025

Omschrijving

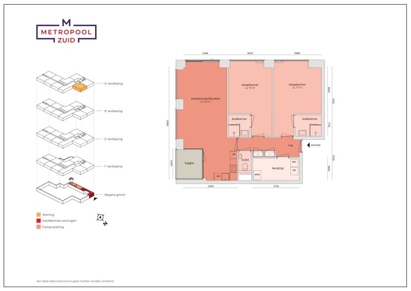
Luxe wonen met comfort, in het bruisende hart van Almere-Stad? Ontdek Metropool Zuid dé plek voor delers, stellen en gezinnen! De lichte gevels vormen een stijlvol contrast met de zwarte raam- en deurkozijnen, wat het complex Metropool Zuid een moderne en krachtige uitstraling geeft. De strakke lijnen en royale raampartijen zorgen voor een eigentijdse look én veel natuurlijk licht. Het kleurcontrast geeft het geheel een stoer en stedelijk karakter dat perfect aansluit bij de dynamiek van de stad. De 40 hoogwaardige huurappartementen aan het Stationsplein worden begin december 2025 opgeleverd. Maak jij van een van de moderne appartementen dit jaar nog jouw thuis? Samen wonen met een vriend(in) of collega én genieten van luxe en comfort in een levendige omgeving? Dan is een appartement in Metropool Zuid precies wat je zoekt! Met twee ruime slaapkamers, en bij 12 appartementen zelfs twee badkamers, is dit nieuwbouwcomplex uiterst geschikt voor woningdelers. Zo kan iedere bewoner van zijn eigen ruimte en privacy genieten. Per appartement kunnen maximaal twee personen worden ingeschreven, mits zij geen gezamenlijk huishouden vormen. Uiteraard zijn de appartementen ook uitermate geschikt voor een alleenstaande, stel of gezin die op zoek zijn naar comfort, ruimte en gemak in het hart van de stad. Slim delen is dubbel genieten Wist je dat samenwonen niet alleen praktisch, maar ook heel gezellig kan zijn? Door een appartement te delen, bespaar je niet alleen op de woonlasten, je deelt ook de dagelijkse momenten. Van samen koken tot ’s avonds bijpraten over jullie ambities: hier wordt samen wonen echt genieten! Toekomst gericht wonen Gelegen aan het bruisende Stationsplein woon je in Metropool Zuid letterlijk midden in het centrum van Almere. Met meer dan 400 winkels, gezellige horecagelegenheden en diverse culturele hotspots op loopafstand, is er altijd iets te beleven. Ook qua bereikbaarheid woon je hier perfect: het NS-station ligt praktisch voor de deur, waardoor je binnen no-time op je school of werk bent. Toe aan ontspanning? Het nabijgelegen Weerwater biedt volop mogelijkheden voor sport en recreatie. De appartementen zijn perfect gelegen ten opzichte van Amsterdam en bieden een directe OV-verbinding met Almere: • 30 minuten vanaf Schiphol Airport • 23 minuten vanaf Amsterdam Centraal • 22 minuten vanaf Amsterdam Zuid Jouw nieuwe thuis, met oog op morgen! De 40 luxe appartementen met vloerverwarming bieden een hoogwaardig afwerkingsniveau en zijn voorzien van: • Luxe PVC-strokenvloer • Separaat toilet met fonteintje, accessoires en ingebouwde verlichting • (En suite) badkamer(s) met inloopdouche en/of ligbad, wastafelmeubel, spiegelkast met verlichting, elektrische handdoekradiator en inbouwspots • Moderne keuken met inbouwapparatuur van het merk ‘Pelgrim’, uitgevoerd in de stijlvolle kleur ‘espresso’ • Volledig wit gestucte wanden en plafonds • Gordijnrails Daarnaast beschikt ieder appartement over een eigen loggia, waar je in alle rust kunt ontspannen, midden in de stad. De appartementen zijn met zorg afgewerkt en helemaal instapklaar. Algemene huurvoorwaarden: • Voor de appartementen is een (gezamenlijk) netto-inkomen per maand vereist van minimaal 2,7 x de maandhuur • Het inkomen van alle huurders telt 100% mee • De verhuurder biedt een huurovereenkomst aan voor onbepaalde tijd met een minimale huurperiode van 12 maanden • De huurprijs is exclusief water, elektra en stadsverwarming • Verhuur is onder voorbehoud van gunning door de verhuurder Interesse? Neem dan snel contact met ons op. Wij vertellen je graag waar en hoe je je kunt inschrijven om in aanmerking te komen voor een appartement in Metropool Zuid. Disclaimer: Deze informatie is met zorg samengesteld. Aan de afbeeldingen, teksten en (oppervlakte)maten kunnen echter geen rechten worden ontleend. Wijzigingen voorbehouden.450...... Als je verder klikt kom je bij een nieuwe pagina met uitgebreide informatie over de huurwoning en met de directe contactgegevens van de beheerder

Recent toegevoegd

  • #

    Te huur Appartement Weerdestein in Amsterdam

    Weerdestein, Amsterdam, 1083GD

    €2900 maand

  • #

    Te huur Appartement Wilhelminastraat in Haarlem

    Wilhelminastraat, Haarlem, 2011VP

    €3000 maand

  • #

    Te huur Huis Gaussstraat in Nijmegen

    Gaussstraat, Nijmegen, 6533LD

    €1750 maand

  • #

    Te huur Appartement Willemstraat in Utrecht

    Willemstraat, Utrecht, 3511RK

    €3450 maand

  • #

    Te huur Appartement Meerring in Eindhoven

    Meerring, Eindhoven, 5658LD

    €1750 maand

  • #

    Te huur Huis Grevelingen in Tilburg

    Grevelingen, Tilburg, 5032TG

    €3500 maand

  • Soortgelijke vermeldingen

    Te huur Appartement Weerdestein in Amsterdam

    Weerdestein, Amsterdam, 1083GD

    • 3 Slaapkamers
    • Oppervlakte 110 m²
    • 4 Kamers

    Te huur Appartement Wilhelminastraat in Haarlem

    Wilhelminastraat, Haarlem, 2011VP

    • 1 Slaapkamers
    • Oppervlakte 93 m²
    • 2 Kamers

    Te huur Huis Gaussstraat in Nijmegen

    Gaussstraat, Nijmegen, 6533LD

    • 3 Slaapkamers
    • Oppervlakte 94 m²
    • 4 Kamers

    Te huur Appartement Willemstraat in Utrecht

    Willemstraat, Utrecht, 3511RK

    • 4 Slaapkamers
    • Oppervlakte 120 m²
    • 5 Kamers

    Te huur Appartement Meerring in Eindhoven

    Meerring, Eindhoven, 5658LD

    • 2 Slaapkamers
    • Oppervlakte 93 m²
    • 3 Kamers

    Te huur Huis Grevelingen in Tilburg

    Grevelingen, Tilburg, 5032TG

    • 2 Slaapkamers
    • Oppervlakte 156 m²
    • 3 Kamers

    Te huur Appartement Rosmolenplein in Tilburg

    Rosmolenplein, Tilburg, 5014ES

    • 1 Slaapkamers
    • Oppervlakte 50 m²
    • 2 Kamers

    Te huur Appartement Olof Palmelaan in Utrecht

    Olof Palmelaan, Utrecht, 3527WK

    • 2 Slaapkamers
    • Oppervlakte 75 m²
    • 3 Kamers

    Te huur Appartement Vierambachtsstraat in Rotterdam

    Vierambachtsstraat, Rotterdam, 3023AT

    • 1 Slaapkamers
    • Oppervlakte 35 m²
    • 2 Kamers

    Te huur Appartement Mozartrode in Zoetermeer

    Mozartrode, Zoetermeer, 2717CV

    • 4 Slaapkamers
    • Oppervlakte 120 m²
    • 5 Kamers